top of page
Roisin's Online Portfolio
Create Your First Project
Start adding your projects to your portfolio. Click on "Manage Projects" to get started
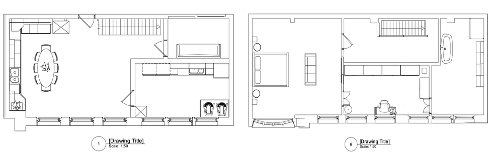
Live Work Space
203 – 206 Foleshill Road Coventry, CV4 4JZ
The old cycle factory was built in the 20th century and has been known for many things throughout its time. Edward Salmon O`Brien was the London engineer who came up with the idea of the factory with the original intention to be a bicycle and motorcycle factory.
The hopes for this now derelict building is to turn it into apartments that can enhance the history and bring in new life to a historic building.
This project gave me an opportunity to find a way to make a section of this building into a place to live and work, but keeping some of the historic factors within it.






















bottom of page

